Биокамин встраиваемый Fest 1600 (Estetic Flame)
огненный декор можно в любой квартире, даже если вы живете на первом этаже и дымохода в здании нет. Заказывать проект и согласовывать установку камина с пожарными службами и другими инстанциями не нужно.
Биокамин работает на жидком экологичном топливе. Состав на спиртовой основе при сгорании не выделяет дыма, гари и копоти. Поэтому устройство не привязано к коммуникациям и его можно инсталлировать в любую ненесущую конструкцию. В том числе – в короб из гипсокартона или мебель из МДФ. Для теплоизоляции в последнем случае достаточно минеральной ваты и фольги.
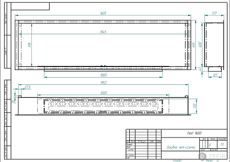
Отечественный производитель дает 5-летнюю гарантию на эту модель, так как уверен в ее высоком качестве. Экокамин имеет прочную конструкцию, очаг покрыт долговечной порошковой краской с матовым эффектом. Топливный контейнер с фигурными отверстиями – визитной карточкой бренда – дает красивую ровную линию огня длиной 1000 мм. Модель подходит для проветриваемых помещений площадью от 30 кв. м и при своем объеме топки 4,8 л способна работать непрерывно 2-3 часа.
Объем топки: 4.8 л
Форма: Прямоугольный, Очаг
Габариты ВхШхГ: 455х1605х177 мм
Линия огня: 1000 мм
Материал: Сталь в порошковой окраске, топка - шлифованная нержавеющая сталь
Тип биокамина: Встраиваемый
Тип управления: Мануальный (ручной)
_0x0_f3a.jpg)

